PROPERTY/ 物件情報

2025.05.10,物件情報

【仲介物件】 2025年8月完成新築建売物件

 

販売価格  2,458万円(税込)
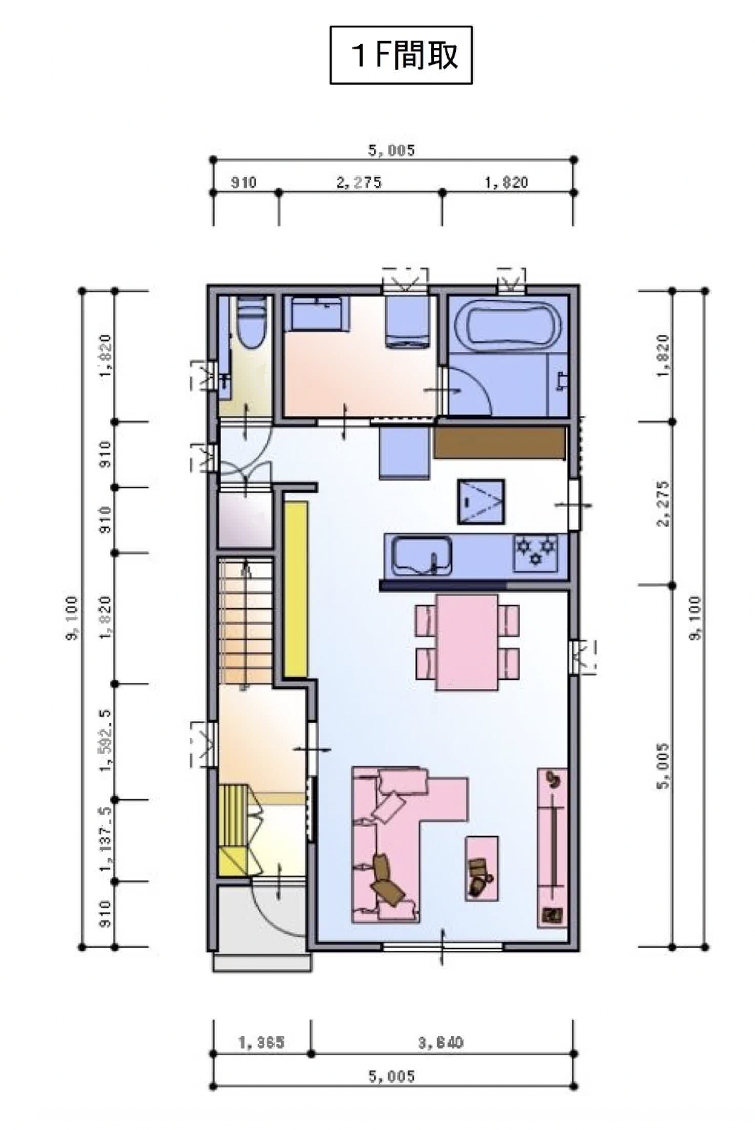
間取り 3LDK(洋5.2・5.2・8 /LDK 16.7)  
建物面積 89.84㎡ (27.17坪)
土地面積 98.80㎡(公簿)(29.8坪)

□ 物件情報詳細 □

物件名 新築建売物件
住所 今治市蔵敷町1丁目2-9
販売価格 2,458万円(税込)
間取り 3LDK (洋5.2・5.2・8 LDK16.7)
建物面積 89.84㎡ (27.17坪)
土地面積 98.80㎡(公簿)(29.8坪)
物件種目 新築物件
築年月 2025年8月新築
階建 2階建て
駐車場 2
建物構造 木造
土地権利 所有権
都市計画 市街化区域
用途地域 準工業
接道状況
建ぺい率 60%
容積率 200%
地目 宅地
地勢 平坦
備考 学校や駅、病院、商業施設も近く、子育て世代にもシニア世代にも安心で便利な住環境です♪
また、コンパクトながらも駐車スペースを2台確保し、トイレも2ヶ所あるのも嬉しいポイントです!

 

 

お問い合わせはお電話、またはHPのお問い合わせフォームにて受け付けております。

お気軽にお問い合わせください!

TEL:0898-33-1222

お問い合わせはこちらから

CONTACT/ お気軽にお問い合わせください

藤工務店では、家を建てることについてはもちろん、
土地探しや土地活用や、仕様の相談、借り入れについてなど、様々なお悩みをお聞きしています。

「工務店にこんなこと聞いても大丈夫だろうか?」
「今更聞くのもなんだか恥ずかしい・・・」

どんなお悩みでも大丈夫です。
藤工務店のスタッフが、親身にご相談に応じます。

MORE

MORE